Active
159 Winding Chestnut Drive, Columbia, SC 29212
159 Winding Chestnut Drive, Columbia, SC 29212
  • $219,999

Overview

Property ID: 630188
  • Townhouse, Residential
  • Property Type
  • 3
  • Bedrooms
  • 3
  • Bathrooms
  • 1
  • Garage
  • 1475
  • Sqft
  • 2025
  • Year Built

Description

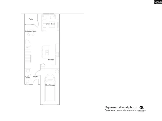
Move In Ready! Nature lovers, welcome to your stunning NEW 3-bedroom, 2.5-bath Aspen interior plan, perfectly situated for easy commuting in Columbia and nearby Irmo, SC. This brand new community is tucked into an established neighborhood that houses attractions like river access, boat ramps, fishing, hiking, community events. Enjoy the convenience of nearby shopping, Riverbanks Zoo, River Walk Park, and just a 20-minute drive to downtown Columbia. your new home features elegant quartz countertops in the kitchen and baths and wood-inspired vinyl plank flooring throughout the first floor. The open kitchen has spacious counters, an expansive island, and modern stainless-steel appliances, including a gas stove, microwave and dishwasher. All bedrooms are located on the second floor for privacy from the main level and the large owner’s suite even allows space for a king size bed. Your owners suite includes double vanity, a full walk in closet, and spacious walk-in shower. An additional full bathroom is conveniently located near 2 bedrooms, ideal for privacy from main floor living, hosting overnight guests, or creating a home office. This home offers a low maintenance lifestyle living with a covered patio and association dues are currently estimated and under review. Start living your best life, surrounded by amenities and features at The Point at Chestnut Hills Place! Disclaimer: CMLS has not reviewed and, therefore, does not endorse vendors who may appear in listings.

  • Address 159 Winding Chestnut Drive
  • City Columbia
  • State/county SC
  • Zip/Postal Code 29212
  • Area CHESTNUT HILL PLANTATION - THE POINT

Details

Updated on April 15, 2026 at 3:49 pm
  • Property ID: 630188
  • Price: $219,999
  • Property Size: 1475 Sqft
  • Bedrooms: 3
  • Bathrooms: 3
  • Garage: 1
  • Garage Size: x x
  • Year Built: 2025
  • Property Type: Townhouse, Residential
  • Property Status: Active

Additional details

  • School District: Lexington/Richland Five
  • Sewer: Public
  • Cooling: Central
  • Heating: Gas 1st Lvl,Gas 2nd Lvl
  • County: Richland
  • Property Type: Residential
  • Elementary School: Oak Pointe
  • High School: Dutch Fork
  • Architectural Style: Traditional

Mortgage Calculator

Monthly
  • Down Payment
  • Loan Amount
  • Monthly Mortgage Payment
  • Property Tax
  • Home Insurance
  • PMI
  • Monthly HOA Fees
$
%
%
%
$
$
%

Schedule a Tour

Your information

360° Virtual Tour

What's Nearby?

Please supply your API key Click Here

Contact Information

View Listings
wilsonprd
  • wilsonprd

Enquire About This Property

0 Review

Sort by:
Leave a Review

Leave a Review

Similar Listings

Compare listings

Compare
wilsonprd
  • wilsonprd