Pending
1111 Nazareth Road, Lexington, SC 29073
1111 Nazareth Road, Lexington, SC 29073
  • $360,764

Overview

Property ID: 625110
  • Single Family, Residential
  • Property Type
  • 4
  • Bedrooms
  • 3
  • Bathrooms
  • 3
  • Garages
  • 2771
  • Sqft
  • 2026
  • Year Built

Description

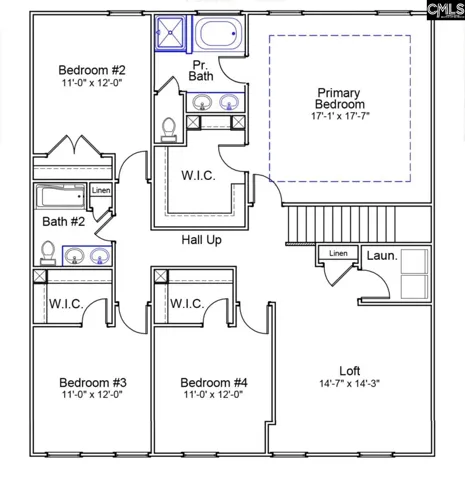
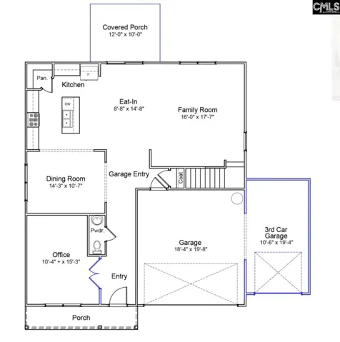
Welcome to Nazareth, Lexington’s exclusive three-car garage community, featuring some of the largest homesites in the area. This two-story Telfair features four bedrooms and two and a half bathrooms, with a covered porch in the back overlooking a .7-acre homesite. An office is located toward the front of the home, adjacent to a formal dining area. The kitchen includes a spacious pantry and a large island that opens to the great room. Upstairs, the primary bedroom offers a roomy walk-in closet and an en-suite bathroom with a separate tiled tub and shower, dual vanities, and a private water closet. Three additional bedrooms share a full bathroom, and a loft provides extra living space. Call today for more information on the Telfair! may appear in listings. *$8500 in closing costs available when using partner lender and preferred attorney* Disclaimer: CMLS has not reviewed and, therefore, does not endorse vendors who may appear in listings.

  • Address 1111 Nazareth Road
  • City Lexington
  • State/county SC
  • Zip/Postal Code 29073
  • Area NAZARETH HEIGHTS

Details

Updated on February 24, 2026 at 10:00 pm
  • Property ID: 625110
  • Price: $360,764
  • Property Size: 2771 Sqft
  • Bedrooms: 4
  • Bathrooms: 3
  • Garages: 3
  • Garage Size: x x
  • Year Built: 2026
  • Property Type: Single Family, Residential
  • Property Status: Pending

Additional details

  • School District: Lexington One
  • Sewer: Septic
  • Cooling: Central,Zoned
  • Heating: Electric,Heat Pump 1st Lvl,Heat Pump 2nd Lvl,Split System,Zoned
  • County: Lexington
  • Property Type: Residential
  • Elementary School: Red Bank
  • High School: White Knoll
  • Architectural Style: Traditional

Mortgage Calculator

Monthly
  • Down Payment
  • Loan Amount
  • Monthly Mortgage Payment
  • Property Tax
  • Home Insurance
  • PMI
  • Monthly HOA Fees
$
%
%
%
$
$
%

Schedule a Tour

Your information

360° Virtual Tour

What's Nearby?

Please supply your API key Click Here

Contact Information

View Listings
wilsonprd
  • wilsonprd

Enquire About This Property

0 Review

Sort by:
Leave a Review

Leave a Review

Similar Listings

Compare listings

Compare
wilsonprd
  • wilsonprd