Active
308 Tartan Road, Hopkins, SC 29061
308 Tartan Road, Hopkins, SC 29061
  • $233,000

Overview

Property ID: 620161
  • Single Family, Residential
  • Property Type
  • 3
  • Bedrooms
  • 3
  • Bathrooms
  • 1
  • Garage
  • 1648
  • Sqft
  • 2025
  • Year Built

Description

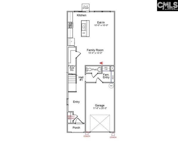
*$11,500 in options or up to $15,000 in closing cost with Silverton Mortgage and MGC Law. Located in the sought-after Laurinton Farms community, this Douglas floor plan offers stylish, upgraded living in a beautifully designed two-story single-family home. The open-concept kitchen features crisp white cabinetry paired with Luna Pearl granite countertops, a spacious island, brushed satin nickel hardware, and a classic white glossy subway tile backsplash in an offset pattern. Crown molding adds a sophisticated touch throughout. Oyster Oak luxury vinyl plank flooring flows seamlessly through the main areas including the kitchen, eat-in area, family room, entry, laundry, pantry, and baths offering both durability and warmth. Upstairs, plush Alcot Way Concrete carpet softens the bedrooms and hallways, creating a cozy retreat. The primary boasts raised vanities with quartz counters, a boxed ceiling detail, and a beautifully tiled walk-in shower with glass bypass doors for a spa-like finish. This home blends timeless design with modern upgrades, perfect for those seeking comfort, style, and quality craftsmanship. Don’t miss your chance to own this stunning home schedule your private tour today and experience Laurinton Farms living at its finest! Disclaimer: CMLS has not reviewed and, therefore, does not endorse vendors who may appear in listings.

  • Address 308 Tartan Road
  • City Hopkins
  • State/county SC
  • Zip/Postal Code 29061
  • Area LAURINTON FARMS

Details

Updated on April 4, 2026 at 5:39 pm
  • Property ID: 620161
  • Price: $233,000
  • Property Size: 1648 Sqft
  • Bedrooms: 3
  • Bathrooms: 3
  • Garage: 1
  • Garage Size: x x
  • Year Built: 2025
  • Property Type: Single Family, Residential
  • Property Status: Active

Additional details

  • School District: Richland One
  • Sewer: Public
  • Cooling: Central,Heat Pump 2nd Lvl,Split System,Zoned
  • Heating: Gas 1st Lvl,Heat Pump 2nd Lvl,Split System,Zoned
  • County: Richland
  • Property Type: Residential
  • Elementary School: Horrell Hill
  • High School: Lower Richland
  • Architectural Style: Contemporary

Mortgage Calculator

Monthly
  • Down Payment
  • Loan Amount
  • Monthly Mortgage Payment
  • Property Tax
  • Home Insurance
  • PMI
  • Monthly HOA Fees
$
%
%
%
$
$
%

Schedule a Tour

Your information

What's Nearby?

Please supply your API key Click Here

Contact Information

View Listings
wilsonprd
  • wilsonprd

Enquire About This Property

0 Review

Sort by:
Leave a Review

Leave a Review

Similar Listings

Compare listings

Compare
wilsonprd
  • wilsonprd